Používame cookies

Súbory cookie a ďalšie technológie sledovania používame na zlepšenie vášho zážitku z prehliadania našich webových stránok, na to, aby sme vám zobrazovali prispôsobený obsah a cielené reklamy, na analýzu návštevnosti našich webových stránok a na pochopenie toho, odkiaľ naši návštevníci prichádzajú. Viac info

2-izbový byt po rekonštrukcii na Špačinskej, Trnava

Predaj 158 900 €
Ulica: Špačinská
Obec: Trnava
Okres: Trnava
Kraj: Trnavský kraj
Druh: Byty
Typ: Predaj
Typ bytu: 2-izbový byt

Popis nehnuteľnosti

Na predaj: 2-izbový byt po čiastočnej rekonštrukcii – Špačinská cesta, Trnava

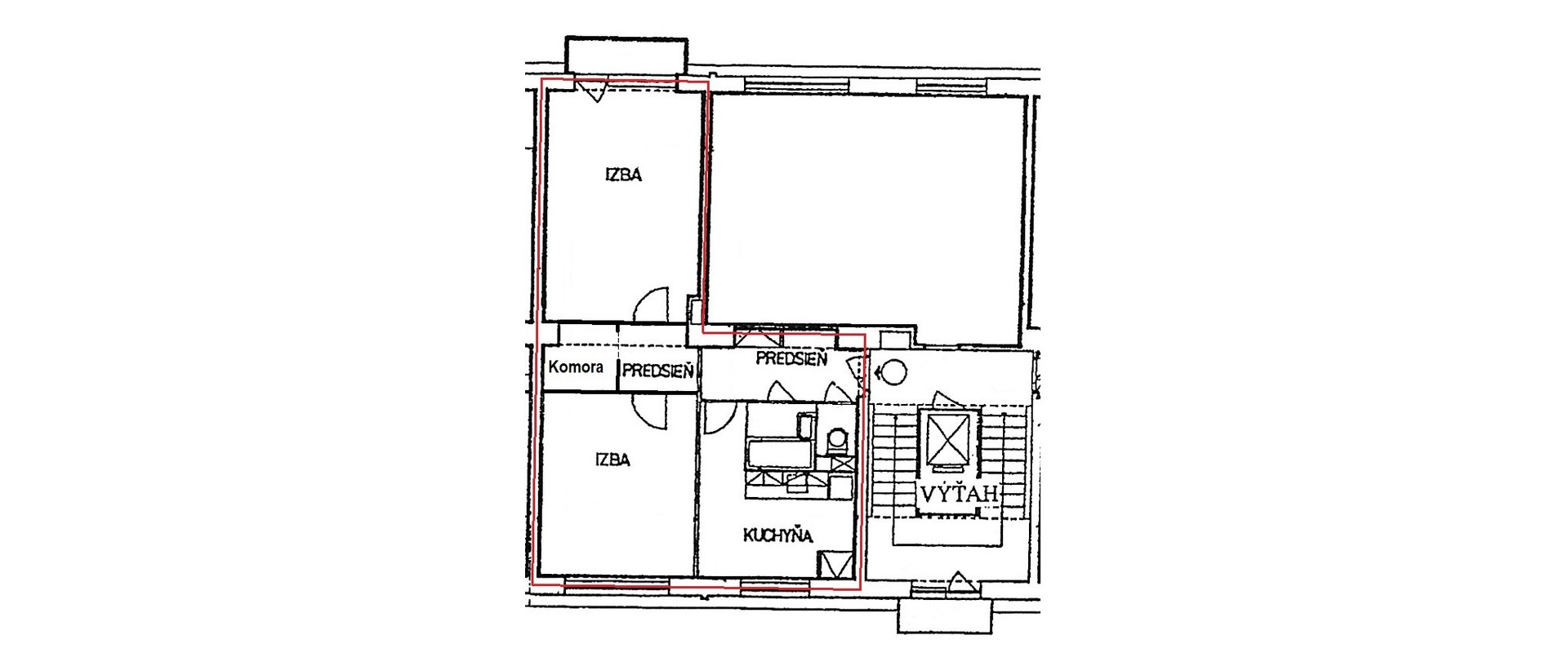
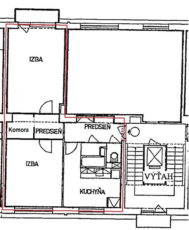
Ponúkame na predaj priestranný 2-izbový byt (2+1) po čiastočnej renovácii, nachádzajúci sa na Špačinskej ceste v Trnave. Byt je situovaný na 3. poschodí z 8, v zateplenom murovanom bytovom dome s výťahom (obnova 2009–2011).

Výmera

Úžitková plocha: 52,75 m²
(interiér 50,9 m² + balkón 1,85 m²)

Pivnica: 1,12 m²

Celková plocha: 53,87 m²

Dispozícia

vstupná chodba

samostatné WC

kúpeľňa s vaňou

samostatná kuchyňa

komora

samostatná izba

samostatná izba s výstupom na balkón

Byt prešiel čiastočnou rekonštrukciou v roku 2020 – nové podlahy, kuchynská linka, dvere, maľovky, vytvorená komora a samostatná izba.

Vybavenie

Byt sa predáva vrátane nábytku a spotrebičov – chladnička, vstavaná rúra, plynový sporák, digestor, práčka, sedenie pre 2 osoby, posteľ, skriňa, stôl, stolička, regály v komore.
Okná sú plastové.

Lokalita

Výborná poloha s rýchlou dostupnosťou do historického centra Trnavy, v blízkosti športový areál Slávia, tenisové centrum, Aquapark, univerzita UCM.
V okolí kompletná občianska vybavenosť – Lidl, Coop, Kaufland, Tesco, poliklinika, MHD.
Parkovanie je možné pred domom aj na okolitých parkovacích plochách.
Byt nie je orientovaný do rušnej cesty.

Prevádzkové náklady

Cca 200 € / mesiac pre 2 osoby.

Cena

158 900 €

V prípade záujmu alebo akýchkoľvek otázok nás neváhajte kontaktovať. Radi vám poskytneme všetky doplňujúce informácie a pomôžeme so zabezpečením celého procesu kúpy nehnuteľnosti.

Doplňujúce informácie

Status:
aktívne
Vlastníctvo:
osobné
Úžitková plocha:
52.75 m2
Zastavaná plocha:
53.87 m2
Podlahová plocha:
50.9 m2
Skladová plocha:
1.2 m2
Stav:
čiastočne prerobený
Energetický certifikát:
žiadne
Balkón:
áno
Pivnica:
áno
Verejné vonkajšie parkovanie:
áno
Výťah:
áno
Celková plocha:
53.87 m2

Kontaktujte makléra

Informatívna úverová kalkulačka

Pozrieť na mape