Používame cookies

Súbory cookie a ďalšie technológie sledovania používame na zlepšenie vášho zážitku z prehliadania našich webových stránok, na to, aby sme vám zobrazovali prispôsobený obsah a cielené reklamy, na analýzu návštevnosti našich webových stránok a na pochopenie toho, odkiaľ naši návštevníci prichádzajú. Viac info

Predaj 1,5 izbového bytu s predzáhradkou na Uzbeckej

Predaj 232 900 €
+ provízia RK
Ulica: Uzbecká
Obec: Bratislava-Podunajské Biskupice
Okres: Bratislava II
Kraj: Bratislavský kraj
Druh: Byty
Typ: Predaj
Typ bytu: 2-izbový byt

Popis nehnuteľnosti

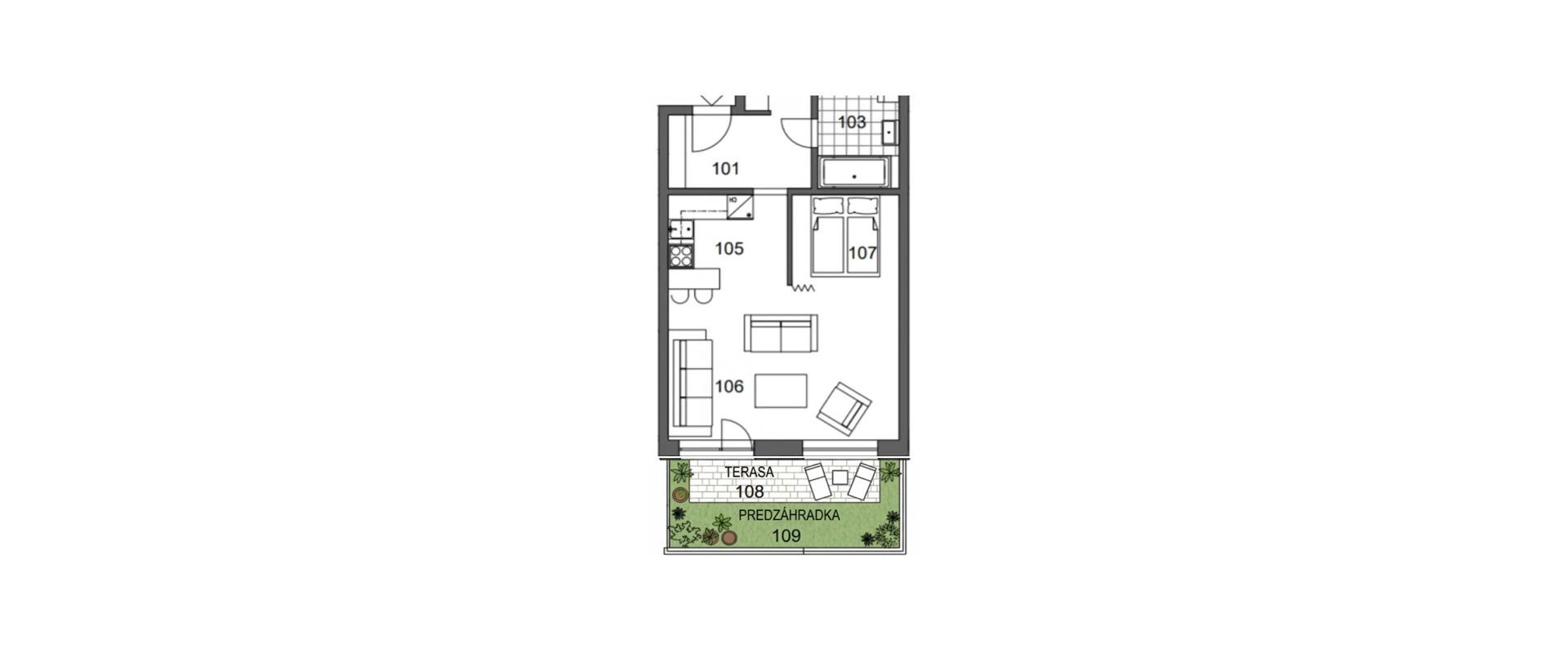
Ponúkam na predaj 1,5 izbový byt s predzáhradkou v novostavbe OPPIDIUM v časti Podunajské Biskupice s výhľadom do parku. K bytu je možné dokúpiť garážové miesto.

Podlahová plocha: 48,06 m2 (k tomu sa pripočítava terasa 4,93m2, predzáhradka 6m2 a pivnica 1,57m2)

Byt má vstupnú chodbu, obývaciu izbu prepojenú s kuchyňou a pracovňou, spaciu miestnosť, kúpeľňu so sprchovacím kútom a samostatné WC. V byte je nainštalovaná klimatizácia, podlahové kúrenie a má vlastný plynový kotol. Okná sú orientované na západ.

Tento tehlový bytový dom bol kolaudovaný v roku 2019 a má oplotený súkromný areál.

Mesačné náklady na bývanie 150€ + 30€ energie.

Lokalita ponúka bývanie v obľúbenej časti Podunajských Biskupíc s vynikajúcou občianskou vybavenosťou, kde máte obchody Billa a Lidl doslova na pár krokov od vchodu. Lokalita vyniká skvelou dopravnou dostupnosťou vďaka neďalekému napojeniu na obchvat a zastávkam MHD, ktoré zabezpečujú rýchle spojenie s centrom mesta. Rodiny ocenia bezprostrednú blízkosť detských ihrísk, škôl a dostatok zelene v okolí, čo robí z tejto adresy praktické a príjemné miesto pre život.

Byt sa predáva zariadený s možnosťou okamžitého nasťahovania

 

Cena bytu: 232 900€ + provízia RK

 

V prípade záujmu o obhliadku, ma neváhajte kontaktovať na tel. čísle 0918 567 825

Doplňujúce informácie

Status:
aktívne
Vlastníctvo:
osobné
Úžitková plocha:
58.99 m2
Stav:
novostavba
Terasa:
áno
Pivnica:
áno
Výťah:
áno
Rok výstavby:
2019
Pozícia:
Prízemie
Celková plocha:
58.99 m2
Orientácia:
západ

Kontaktujte makléra

Informatívna úverová kalkulačka

Pozrieť na mape