Používame cookies

Súbory cookie a ďalšie technológie sledovania používame na zlepšenie vášho zážitku z prehliadania našich webových stránok, na to, aby sme vám zobrazovali prispôsobený obsah a cielené reklamy, na analýzu návštevnosti našich webových stránok a na pochopenie toho, odkiaľ naši návštevníci prichádzajú. Viac info

Moderné bývanie bez starostí – stačí sa nasťahovať.

Predaj 130 000 €
Ulica: Rudnaya
Obec: Prievidza
Okres: Prievidza
Kraj: Trenčiansky kraj
Mestská časť: Staré Sídlisko
Druh: Byty
Typ: Predaj
Typ bytu: 2-izbový byt

Popis nehnuteľnosti


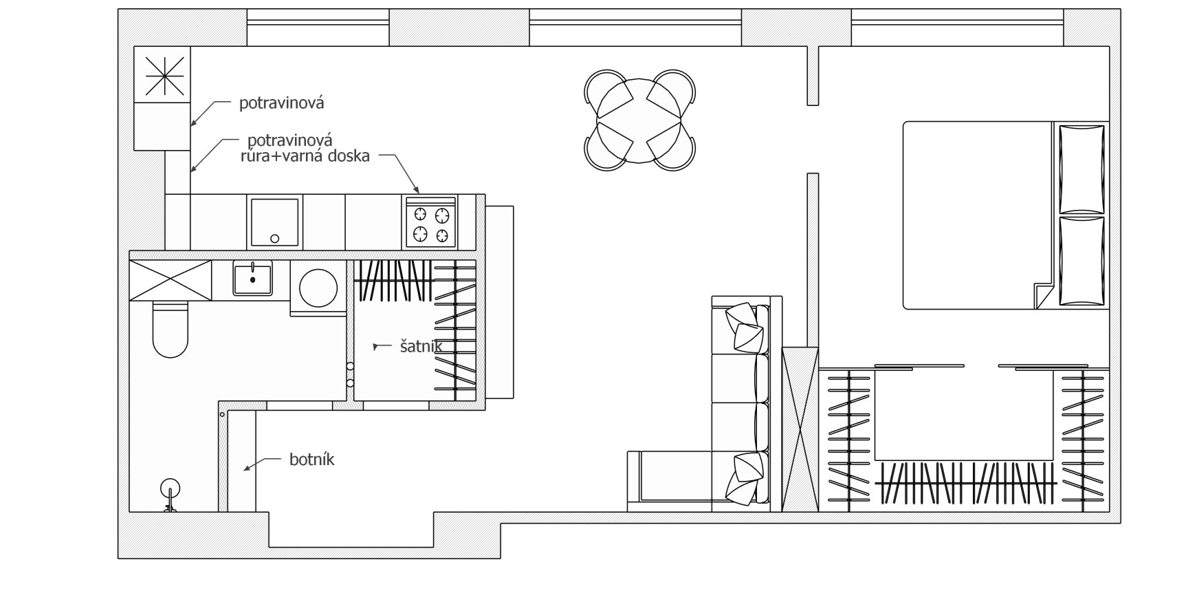
Ponúkam na predaj štýlový, novo zrekonštruovaný 2-izbový byt s rozlohou 55 m², nachádzajúci sa na obľúbenom Starom sídlisku – ulica Rudnaya.

🏡 Byt, ktorý si zamilujete:

vyvýšené prízemie – ideálne pohodlie bez schodov

kompletná rekonštrukcia – všetko nové, čisté a pripravené

nábytok na mieru – maximálne využitie priestoru a moderný dizajn

bez nutnosti ďalších investícií

🛋️ Dispozícia bytu:

vstupná chodba

kúpeľňa s WC a sprchovým kútom

samostatný šatník

priestranná obývacia izba

kuchyňa

spálňa s veľkým šatníkom

📦 Bonus navyše:

k bytu prislúchajú až 2 pivnice – dostatok úložného priestoru

🛠️ Dokončenie:

máj – jún (možnosť doladiť detaily podľa dohody)

💡 Flexibilita:

možnosť kúpy aj bez zariadenia – prispôsobte si byt podľa seba

👉 Ideálna voľba pre tých, ktorí hľadajú moderné bývanie bez starostí alebo výhodnú investíciu na prenájom.

📩 Neváhajte ma kontaktovať pre viac informácií alebo obhliadku u realitného makléra Kamila Duchoňa na telefónom kontakte 0950 736 687.

Doplňujúce informácie

Status:
aktívne
Vlastníctvo:
osobné
Úžitková plocha:
55 m2
Zastavaná plocha:
55 m2
Stav:
úplne prerobený
Celková plocha:
55 m2

Kontaktujte makléra

Informatívna úverová kalkulačka

Pozrieť na mape