Používame cookies

Súbory cookie a ďalšie technológie sledovania používame na zlepšenie vášho zážitku z prehliadania našich webových stránok, na to, aby sme vám zobrazovali prispôsobený obsah a cielené reklamy, na analýzu návštevnosti našich webových stránok a na pochopenie toho, odkiaľ naši návštevníci prichádzajú. Viac info

4-izbový skolaudovaný dom s veľkým pozemkom 400 m²

Predaj 195 500 €
Ulica: Pod Ráblom
Obec: Dvorníky
Okres: Hlohovec
Kraj: Trnavský kraj
Druh: Domy
Typ: Predaj
Typ domu: Rodinný dom

Popis nehnuteľnosti

Ponúkame Vám posledný skolaudovaný 4-izbový rodinný dom v radovej zástavbe v projekte IBV Dvorníky Pod Hájkom. Dom je okamžite k dispozícii, stojí na rovinatom pozemku o výmere 400 m² a poskytuje moderné, komfortné a úsporné rodinné bývanie v pokojnom prostredí mimo hlavnej cesty.

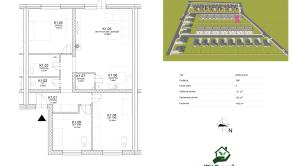
Dispozícia vychádza z projektovej dokumentácie — priestranná obývačka s jedálňou, samostatná kuchyňa, kúpeľňa, WC, spálňa, dve detské izby, chodba a technické priestory.
Dom ponúka ideálny pomer úžitkovej plochy a veľkosti pozemku, čo z neho robí jednu z najatraktívnejších možností v rámci celej IBV.

Parametre nehnuteľnosti

Typ: Radový dom

Stav: Skolaudovaný – IHNEĎ K DISPOZÍCII

Podlažie: 1 NP

Počet izieb: 4

Úžitková plocha: 111 m²

Zastavaná plocha: 130 m²

Pozemok: 400 m²

Cena: 195 612 €

Výhody nehnuteľnosti

✔️ Posledný skolaudovaný dom v projekte

✔️ Veľký rovinatý pozemok 400 m²

✔️ Nová, tichá rezidenčná zóna

✔️ Všetky siete + kvalitná infraštruktúra

✔️ Moderné dispozičné riešenie pre rodiny

✔️ Energeticky úsporný dom

✔️ Bez ďalšieho čakania – ihneď voľný

Lokalita – Dvorníky pod Ráblom

Obec ponúka kompletnú občiansku vybavenosť, príjemné prostredie, rýchlu dostupnosť do Serede, Hlohovca aj Trnavy. Novovybudovaná IBV poskytuje tiché a bezpečné rodinné bývanie s množstvom zelene a výbornou komunitnou atmosférou.

V prípade záujmu alebo akýchkoľvek otázok nás neváhajte kontaktovať.
Radi vám poskytneme všetky doplňujúce informácie a pomôžeme so zabezpečením celého procesu kúpy nehnuteľnosti.

Doplňujúce informácie

Status:
aktívne
Vlastníctvo:
osobné
Plocha pozemku:
400 m2
Úžitková plocha:
111 m2
Zastavaná plocha:
130 m2
Podlahová plocha:
111 m2
Stav:
novostavba
Počet izieb:
4
Energetický certifikát:
A
Terasa:
áno
Špajza:
áno
Celková plocha:
400 m2
Vykurovanie - podlahové:
áno
Optická sieť:
áno

Kontaktujte makléra

Informatívna úverová kalkulačka

Pozrieť na mape